紅河州婦幼保健院托育綜合服務中心
云南 紅河州
0755-22219851
中國少兒教育空間設計領導品牌-幼兒園設計|早教中心設計|托育園設計|親子樂園設計|兒童游樂場設計
兒童空間設計:Hazel Glen 兒童家庭中心
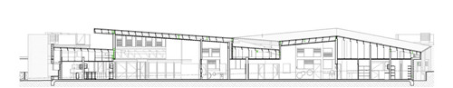
Hazel Glen兒童家庭中心使用釉磚拼圖創造出一種有活力的效果,加上豐富的木材表達,共同構筑一個熱情的家庭中心。這個藝術式的建筑包括四個兒童保育室、婦幼健康咨詢室、大小不一的活動室以及一個靈活的中心集合空間。
該建筑位于Plenty 河谷的中心位置,以蜿蜒的Plenty河為參照,創建出平滑的墻面和外廊曲線,猶如水流和漩渦穿過中心空間,而屋頂邊線則是對遠處Kinglake山脈輪廓線的呼應。幼兒園設計
Hazel Glen兒童家庭中心非常注重環境的可持續性。雖然該建筑是可持續設計中一個優秀的技術典范,但中心概念是將建筑以一種積極的方式根植于所在環境中,與大自然形成實驗性的連接,引導孩子們通過直接體驗來獲得知識。
Brand Architects事務所相信建造形式對教育環境有著重要的影響,并且我們認為可持續建筑的設計是鼓勵孩子們通過功能合理、有活力和目標空間來獲得知識最好的方式。
當地政府決定將包含健康環境的公共設施開放。一種創新的藝術形式的發展,例如Hazel Glen兒童家庭中心項目,各階段沒有甲方的全力支持是不可能實現的。
在建筑的招標階段,組委會就確保他們要同負責公共建筑質量的建筑師和工程師一起協作,而在設計和施工階段,組委會再次深化此影響并起到監督作用。
Whittlesea市需要一個受歡迎的、有活力并且可達的綜合早期教育中心,為社會接軌提供服務、活動和機會等。這個中心有兩個幼兒園教室,一個長形日托游戲室,一個多動能早齡兒童游戲室,一些員工共享設施,一個迎賓主大廳,家庭服務項目咨詢室,兩個帶有等候區的婦幼健康咨詢室。

該項目成本為每平米$2,500,覆蓋面積為1480平米。對當地政府項目來說,例如這個項目,預算確實對可持續發展有一些約束,這個項目就是如此,但是建筑師為了最大化利用有限資金會謹慎選擇環境可持續設計的規模。
Hazel Glen兒童家庭中心處氣候比較涼爽,在Whittlesea,建筑里需要較長的采暖時間。該建筑使用了一種包含板內液體加熱的燃氣系統,在建筑內可以保暖和蒸發制冷。在天氣溫暖的時候,巧妙的朝向和玻璃的陰影對維持室內舒適溫度和采光至關重要,這得益于防止空氣泄露的雙層玻璃和嚴實的密封裝置。
屋頂上的太陽光光伏板提供建筑耗能頂峰時的15%能量,在夏天極大幅度地降低能耗。加熱系統時板內液體循環加熱的燃氣系統,在節能方面是最有效的保溫選擇,這對很多學習活動都在地板上進行的兒托中心是十分有益的。
夜間換氣系統很大程度地降低了夏季的制冷成本,就像是建筑在夜間使用冷氣自然降溫一樣。這也保證新鮮空氣從早晨就開始充滿房間——在缺少夜晚排風空間而整夜要全部封閉的建筑中,會產生揮發性有機化合物(VOC’s)廢氣。屋頂的一個氣象站保證建筑系統能很好地適應室外環境條件。
雨水被儲存在一個50,300升的地下蓄水池中,可再次用作廁所沖水、室外灌溉和洗衣房用水中。另外,地表上方的水池用于兒童水游戲和教育,這包括一個手工泵——讓孩子們從池塘中手動抽出水來。
這個項目使用公共建筑V1電子數據表來跟蹤整個設計,以應對潛在的信用。這個過程包括收集要上交的對項目和費用不產生影響的必需的證據。另外,設計在SDS(可持續設計得分卡)評估中達到“最好的實用性”,這個評估在一些墨爾本附近的組委會用于ESD規劃中是一個基礎依據。
Whittlesea承諾持續監督和項目分析Hazel Glen兒童家庭中心的運營情況。組委會有一個特別的ESD團隊,他們會定期來拜訪這個建筑,也會出現在為后期建造監督解決必要手續的過程中。
集合設計是一家專注于幼兒園設計,早教中心設計,培訓機構設計,托育中心設計,日托中心設計等文化品牌的專業設計公司
深圳市龍崗區坂田街道四季花城富竹苑A101
0755-22219851
13823185684
386164251
386164251@qq.com
關注我們微信
? 2010-2020 SET ALL RIGHTS RESERVED. 粵ICP備14074451號
集合設計是一家專注于少兒空間設計的專業設計公司。